Все строящиеся дома и готовые новостройки
Свердловской области
Свердловская область

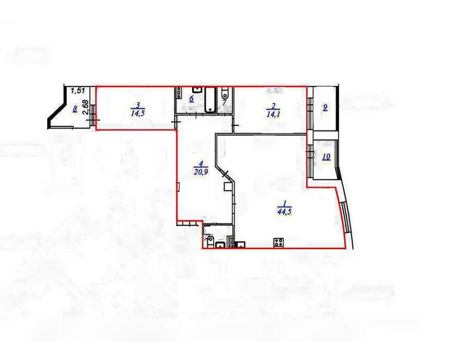
Квартира 3-комн., 103 м2, 6/16 этаж,
Республиканская, д. 5

8 690 692 руб.

84 705 руб./м²
  • Свердловская обл, Орджоникидзевский р-н, Республиканская ул, д. 5

Основные характеристики

  • Срок сдачи 2018 г.
  • Этаж 6 этаж 16-этажного дома
  • Комнат 3
  • Общая площадь 102.6 м²
  • Жилая площадь 74.34 м²
  • Площадь кухни 20 м²
  • Санузел 1 раздельный
  • Балкон / лоджия 1 лоджия

Дополнительная информация

  • Апартаменты нет
  • Источник через агента
  • ФЗ-214 нет
  • Ремонт да
  • Название ЖК ЖК «Соловьи»
  • Корпус дома Дуки, 63

Инфраструктура

Описание

Продается 3-комн. квартира, площадью 102.6 м2 м. Проспект Космонавтов. Жилая площадь 74.34 кв. м, кухня 20 кв. м, ремонта нет, комнаты изолированные. Раздельных санузлов - 1, лоджий - 1. Квартира располагается на 6 этаже 16-этажного монолитного дома в ЖК Соловьи 2018 года постройки. Застройщик - Монтаж-Строй (Брянск) . [#8161672#]

Актуальные предложения

8 690 692 руб. 84 705 руб./м² Квартира 3-комн., 103 м2, 6/16 этаж, Республиканская, д. 5
Позвоните мне